美標電站閘閥產品概述
美標電站閘閥流道采用等徑直通結構,管路中介質可以很容易從入口端流入,較大降低了流阻系數與能量的損耗,其閘板采用楔式彈性閘板,可在高溫高壓狀態下開啟和關閉。該閥的閥體與閥蓋的連接采用壓力自緊密封結構,楔形帶槽的密封環與四開環組合,能使密封環在高壓下變形,實現可靠密封,壓力越高密封性能越好。填料壓蓋和壓套采用分體設計,保證閥桿的同心度。本產品閥蓋上設有推力球軸承及油杯,可定期補充固體潤滑油,減少啟閉力矩,保持輕松啟閉。
美標電站閘閥可在閥的進出口體腔內安裝旁通閥,使閥在關閉狀態下,打開旁通閥,平衡進出口壓力,以減少閥的開啟力及閘板與閥座密封面的磨損。其填料選用編結石墨、柔性石墨填料加中間填料套的組合,既具有較好的密封性能又有相應的強度,確保閥門沒有外泄漏,符合環保要求。該閥的特點是管路中介質在高溫高壓狀態下密封可靠,零泄漏,可承受很大的軸向力和徑向力。本產品特適合安裝在火電站汽水系統中,用于接通或切斷腐蝕性不強的液體、氣體介質流。
美標電站閘閥零件材料
| 序號 | 零件名稱 | 材料名稱 | |||||
| 1 | 閥 體 | A216 WCB | A217 WC1 | A217 WC6 | A217 WC9 | A217 C12A | A351 CF8C |
| 2 | 閥 座 | A105 | A182 F11 | A182 F11 | A182 F22 | A182 F91 | A182 F347 |
| 3 | 閘 板 | A216 WCB | A217 WC1 | A217 WC6 | A217 WC9 | A217 C12A | A351 CF8C |
| 4 | 閥 桿 | A182 F6a CL.2 | A182 F11 | A182 F11 | A182 F22 | A182 F91 | A182 F347 |
| 5 | 閥 蓋 | A216 WCB | A217 WC1 | A217 WC6 | A217 WC9 | A217 C12A | A351 CF8C |
| 6 | 密 封 圈 | GRAPHITE | GRAPHITE | GRAPHITE | GRAPHITE | GRAPHITE | GRAPHITE |
| 7 | 四 開 環 | A182 F6a CL.2 | A182 F11 | A182 F11 | A182 F22 | A182 F91 | A182 F347 |
| 8 | 填料壓蓋 | A216 WCB | A217 WC1 | A217 WC6 | A217 WC9 | A217 C12A | A351 CF8C |
| 9 | 填 料 | GRAPHITE | GRAPHITE | GRAPHITE | GRAPHITE | GRAPHITE | GRAPHITE |
美標電站閘閥性能規范
| 公稱壓力Class | 150 | 300 | 600 | 900 | 1500 | 2500 |
| 強度試驗壓力/MPa | 3.0 | 7.5 | 16.5 | 22.5 | 39.2 | 65.2 |
| 上密封試驗壓力/MPa | 2.2 | 5.5 | 12.1 | 16.5 | 28.6 | 47.75 |
| 密封試驗壓力/MPa | 2.2 | 5.5 | 12.1 | 16.5 | 28.6 | 47.75 |
| 設計制造 | API 600:2021 鋼制閘閥—法蘭連接端和對焊端,螺栓連接閥蓋 | |||||
| 結構長度 | ASME B16.10:2017 閥門(面-面和端-端)結構長度 | |||||
| 連接法蘭 | ASME B16.5:2017、ASME B16.47:2017、ANSI B16.5:2013 | |||||
| 檢驗試驗 | API 598:2016 閥門檢驗和試驗 | |||||
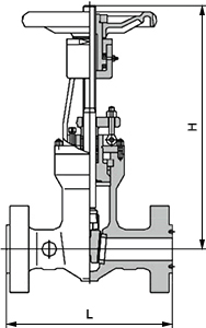
美標電站閘閥主要尺寸
| 公稱壓力 Class | 公稱尺寸 NPS | 外形尺寸/mm | 公稱壓力 Class | 公稱尺寸 NPS | 外形尺寸/mm | ||
| L | H | L | H | ||||
| 900 | 2 | 368 | 520 | 1500 | 2 | 368 | 615 |
| 3 | 381 | 650 | 3 | 473 | 705 | ||
| 4 | 457 | 750 | 4 | 546 | 925 | ||
| 6 | 610 | 800 | 6 | 705 | 1190 | ||
| 8 | 737 | 940 | 8 | 832 | 1525 | ||
| 10 | 838 | 918 | 10 | 991 | 998 | ||
| 12 | 965 | 1041 | 12 | 1130 | 1141 | ||
| 14 | 1029 | 1141 | 14 | 1257 | 1249 | ||
| 16 | 1130 | 1285 | 16 | 1384 | 1351 | ||
| 18 | 1219 | 1445 | 18 | 1537 | 1535 | ||
| 20 | 1321 | 1670 | 20 | 1664 | 1726 | ||
| 24 | 1549 | 2083 | 24 | 1943 | 2150 | ||
| 表中未列出的其他規格參數,請咨詢汗越閥門技術部! | |||||||
美標電站閘閥結構圖

如果你需訂購我廠電站閥產品,咨詢時煩請說明公稱壓力、公稱尺寸、閥體材質、使用介質、工作溫度等,法蘭標準及法蘭密封面形式等,本產品常用的驅動方式有手動、傘齒輪、電動裝置等,也可按用戶要求選用氣動或液動以及其他等。

