手搖刷式過濾器產品概述
手搖刷式過濾器一種利用濾筒內置的轉動軸與刷子,通過人力手動搖動手柄的方式清洗濾網上的堵塞物,再經筒蓋上安裝的排污閥排出的濾水器,其刷式構造由轉動軸、刷架和條刷等部件組成,轉軸穿過筒體中部頂蓋,帶清洗刷的那端被安裝在筒形濾筒內,刷子緊貼在濾網上,而蓋外側的那頭則裝有一簡便的手柄,當需要清洗濾網上的雜質時,只需打開手動球閥,順時針方向搖動手柄驅動轉軸帶動刷子旋轉,即可將篩網上的堵塞物質刷下,并在管道水流壓力的作用下,將刷洗下來的顆粒物從排放口排出。本產品主要特點是清洗排污工作可在管線運行過程中進行,無需斷流,更不必拆卸上蓋,不影響設備的正常運行,其安裝時應注意保持水流向與外殼箭頭方向一致。
手搖刷式過濾器部件材料
| 序號 | 部件名稱 | 材料名稱 | |||||
| 1 | 筒 體 | Q235B | 20# | S30408 | S30403 | S31608 | S31603 |
| 2 | 法 蘭 | Q235B | Q235B | S30408 | S30403 | S31608 | S31603 |
| 3 | 濾筒濾網 | 304 | 304 | 304 | 304L | 316 | 316L |
| 4 | 清 洗 刷 | 硬質塑料纖維、豬鬃毛、骨質尼龍、不銹鋼絲 | |||||
| 5 | 刷 架 | Q235B | Q235B | S30408 | S30403 | S31608 | S31603 |
| 6 | 頂 蓋 | Q235B | Q235B | S30408 | S30403 | S31608 | S31603 |
| 7 | 排 污 閥 | CF8 | CF8 | CF8 | CF3 | CF8M | CF3M |
手搖刷式過濾器性能規范
| 公稱壓力PN(MPa) | 0.25 | 0.6 | 1.0 | 1.6 | 2.0 | 2.5 |
| 強度試驗壓力(MPa) | 0.375 | 0.9 | 1.5 | 2.4 | 3.0 | 3.75 |
| 密封性能試驗壓力(MPa) | 0.275 | 0.66 | 1.1 | 1.76 | 2.2 | 2.75 |
| 設計制造 | JB/T 7538-2016、SH/T 3411-2017、GB/T 26114-2010 | |||||
| 法蘭標準 | JB/T 81、GB/T 9119、HG/T 20592、HG/T 20615、SH/T 3406、ASME B16.5等 | |||||
| 檢驗試驗 | JB/T 7538-2016、SH/T 3411-2017、GB/T 26114-2010 | |||||
| 過濾精度 | 5目 ~ 150目 | |||||
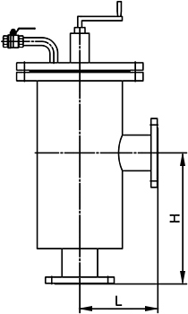
手搖刷式過濾器主要尺寸
| 公稱壓力 PN | 公稱通徑 DN | 結構尺寸/mm | 公稱壓力 PN | 公稱通徑 DN | 結構尺寸/mm | ||
| L | H | L | H | ||||
| 16 | 50 | 240 | 355 | 16 | 200 | 310 | 550 |
| 65 | 240 | 355 | 250 | 360 | 650 | ||
| 80 | 250 | 400 | 300 | 420 | 750 | ||
| 100 | 250 | 420 | 400 | 500 | 900 | ||
| 125 | 280 | 450 | 500 | 550 | 1150 | ||
| 150 | 280 | 480 | 600 | 600 | 1400 | ||
| 以上尺寸僅供參考,表中未列出的其他規格參數,請咨詢汗越閥門技術部! | |||||||
手搖刷式過濾器結構圖


